在线赌场

天气预报:

在线赌场 气象台07时发布:今天白天阴转分散性雷阵雨,东北风转南风1~2级,最高气温31℃;今天夜间分散性雷阵雨转多云,南风1~2级,最低气温22℃。            

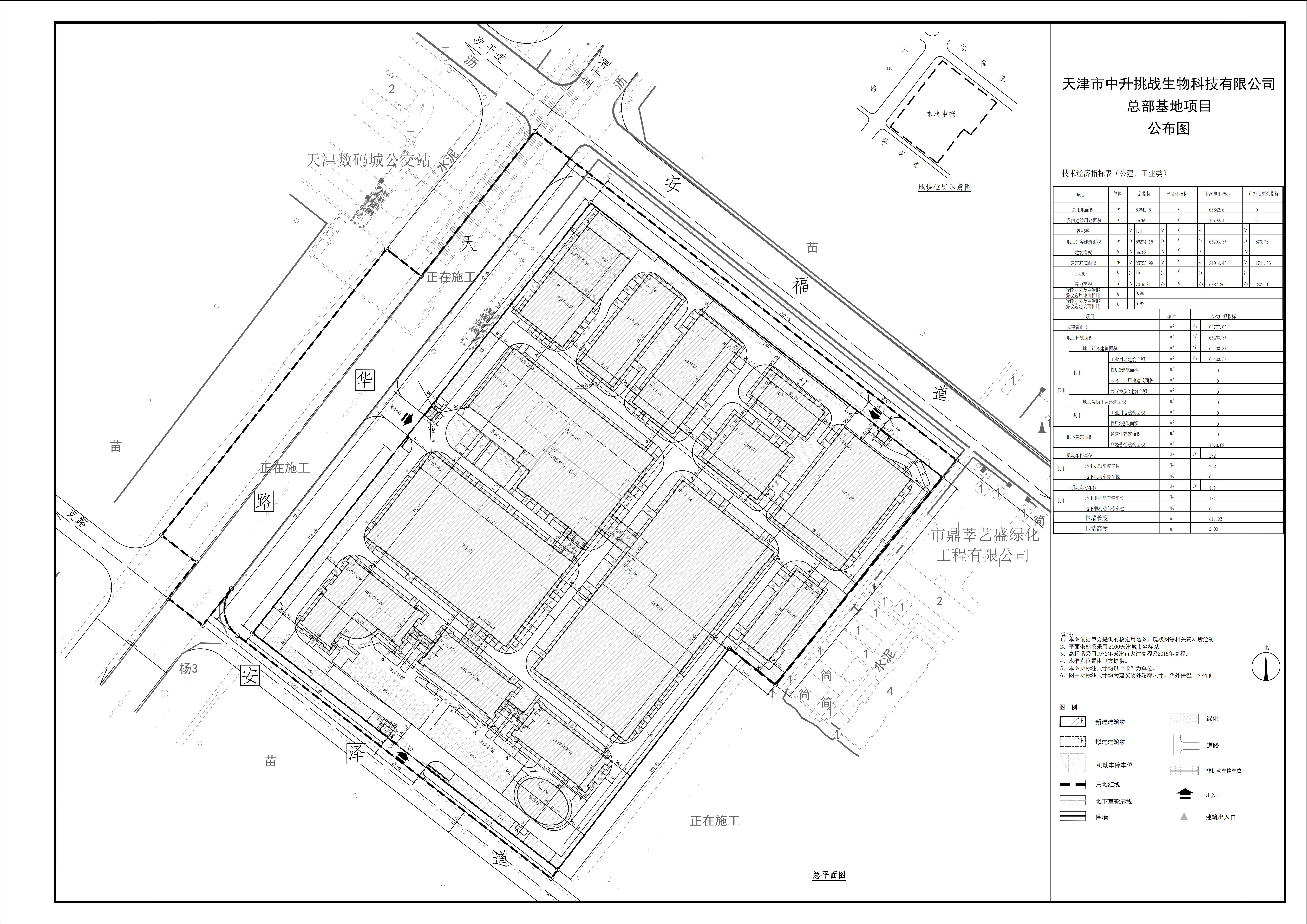
关于公布天津市中升挑战生物科技有限公司总部基地建设工程设计方案总平面图的通知

发布日期:2025-06-12 来源:天津市规划和自然资源局西青分局
字号

天津市中升挑战生物科技有限公司总部基地建设工程规划方案总平面图已审批,审批时间为2025年6月11日,证书编号为2020西青建证0072。按照《中华人民共和国城乡规划法》《天津市城乡规划条例》的要求,现将上述工程总平面图予以公布。

通讯地址:在线赌场 柳口路8号

联系电话:022-27395979

邮政编码:300380



天津市规划和自然资源局西青分局

2025年6月12日

扫一扫在手机打开当前页

主办单位: 在线赌场-在线赌场排名 版权所有  备案单位: 在线赌场-在线赌场排名

网站标识码:1201110001 津ICP备12005437号-1  津公网安备 12011102000289号

地址: 在线赌场 杨柳青府前街2号  邮编: 300380 联系我们

违法和不良信息举报电话:27392579  邮箱: [email protected]

wzalogo_06.png

主办单位: 在线赌场-在线赌场排名 版权所有

备案单位: 在线赌场-在线赌场排名

网站标识码:1201110001 津ICP备12005437号-1

津公网安备 12011102000289号

地址: 在线赌场 杨柳青府前街2号

邮编: 300380 联系我们

违法和不良信息举报电话:27392579

邮箱: [email protected]

wzalogo_06.png