在线赌场

天气预报:

在线赌场 气象台07时发布:今天白天阴转分散性雷阵雨,东北风转南风1~2级,最高气温31℃;今天夜间分散性雷阵雨转多云,南风1~2级,最低气温22℃。            

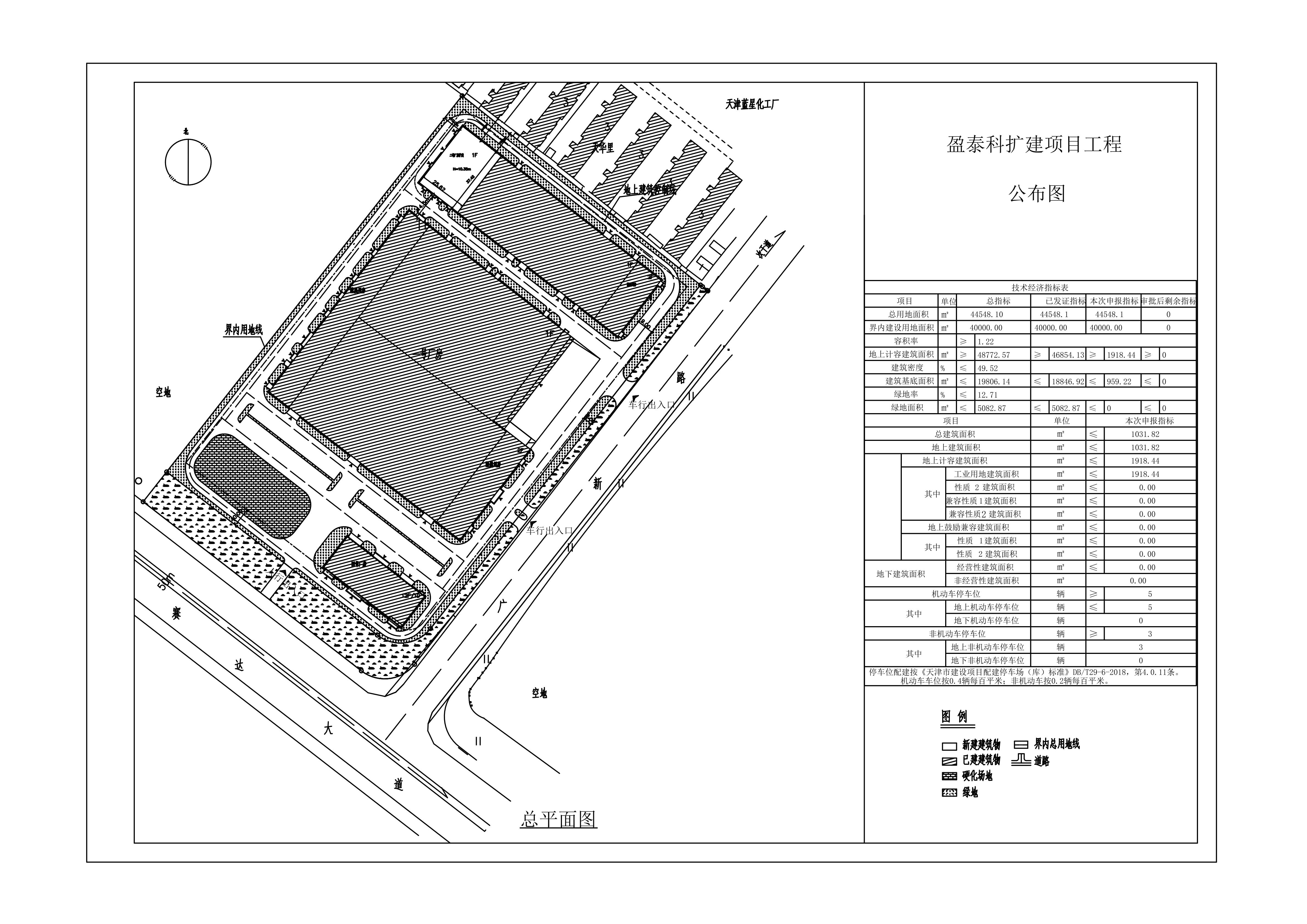
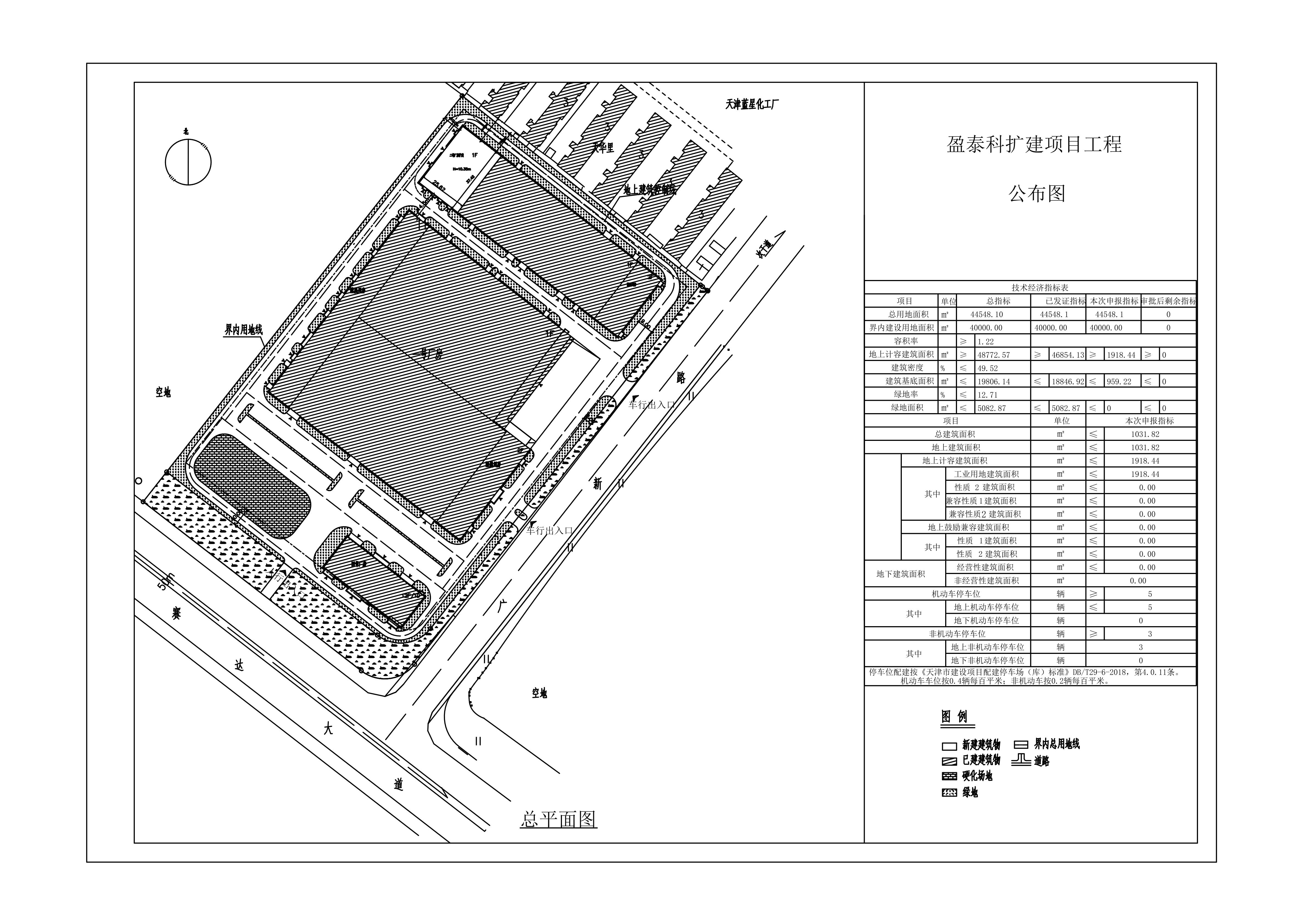
关于公布盈泰科扩建项目工程建设工程设计方案总平面图的通知

发布日期:2025-06-03 来源:天津市规划和自然资源局西青分局
字号

盈泰科扩建项目工程建设工程规划方案总平面图已审批,审批时间为2025年5月28日,证书编号为2025西青建证0038。按照《中华人民共和国城乡规划法》《天津市城乡规划条例》的要求,现将上述工程总平面图予以公布。

通讯地址:在线赌场 柳口路8号

联系电话:022-27395979

邮政编码:300380



天津市规划和自然资源局西青分局

2025年6月3日

扫一扫在手机打开当前页

主办单位: 在线赌场-在线赌场排名 版权所有  备案单位: 在线赌场-在线赌场排名

网站标识码:1201110001 津ICP备12005437号-1  津公网安备 12011102000289号

地址: 在线赌场 杨柳青府前街2号  邮编: 300380 联系我们

违法和不良信息举报电话:27392579  邮箱: [email protected]

wzalogo_06.png

主办单位: 在线赌场-在线赌场排名 版权所有

备案单位: 在线赌场-在线赌场排名

网站标识码:1201110001 津ICP备12005437号-1

津公网安备 12011102000289号

地址: 在线赌场 杨柳青府前街2号

邮编: 300380 联系我们

违法和不良信息举报电话:27392579

邮箱: [email protected]

wzalogo_06.png